
A.N.E.R. (Aux Nettoyeurs et Encaustiqueurs Réunis) est une SCOP – société coopérative – spécialisée dans le nettoyage.
Les prises de décisions se faisant à nombreux, une concertation a eu lieu de fait pour préciser les volets du programme. Au delà des bureaux, que les utilisateurs demandaient pour partie individuels, l’accent a été mis sur la convivialité.
Un espace généreux, comportant cuisine, salon, mezzanine, auquel s’ajoutent une pièce de repos, une cour intérieure et des terrasses agrémentées de potagers ont ainsi été portées au gré des réunions de la phase études.

La reconversion de cet îlot industriel est accompagnée d’une réflexion sur la convivialité au travail.
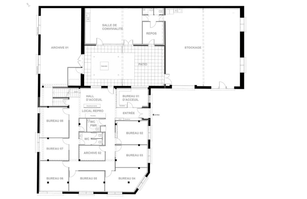
Un patio central est créé par l’évidement d’une surface prise dans les sheds (hangars traditionnels).
Ce patio privatif planté d’un olivier met toutes les parties en relation, par l’intermédiaire des transparences et d’un soin porté aux perspectives depuis les espaces intérieurs, au service d’une cohésion générale.
Lors des démolitions, des arcs en brique ont été découvert sur son coté sud ouest. le mur a alors fait l’objet d’un décroutage et d’une restauration. Une façade hybride assemblant brique ancienne et intervention contemporaine en béton est alors dessinée pendant le chantier.


La patio est longé par un espace de convivialité composé d’une salle de repos, de sanitaires, d’un vaste salon-salle à manger, d’une cuisine et d’une mezzanine.
Sur les autres côtés du patio, on trouve un local de stockage occupant le volume des sheds, un local d’archive en face, surmonté d’une salle de réunion en balcon sur le patio, prenant place sous les sheds, et le bureau d’accueil du côté d’une extension qui préexistait. Au dessus prennent place les bureaux créés en surélévation, eux aussi en vue sur le patio, mais également ouverts au sud sur la terrasse et sur la vue des toits de Montreuil.
De l’extension existante, il n’est conservé que les murs extérieurs. Elle accueillera au rez-de-chaussée le hall d’entrée, et l’essentiel des bureaux organisés autour d’une distribution circulaire qui contourne un bloc technique et prolongée d’une respiration, l’espace d’accueil, qui communique avec le patio, en contact avec l’escalier ouvert.
A l’étage, la surélévation abrite des bureaux : un open space et deux grands bureaux doubles.
Le plan, en haut, est dépourvu de distribution – et donc de hiérarchie : les espaces communiquent tous entre eux. Chacun s’ouvre sur une large terrasse panoramique tournée au sud-est et au sud-ouest, comportant des potagers à l’usage des employés, qui ont d’ailleurs fait l’objet d’une appropriation immédiate lors de l’emménagement.

2- Terrasse dotée de potagers
3- Niveau existant reconstruit (à l’exception des murs périphériques) pour des bureaux individuels
4- Patio privatif évidé dans les volumes anciens mettant en regard toutes les parties du programme
5- Salle de réunion
6- Espace de convivialité
7- Local de stockage

Le patio est traité en dalles de béton, gravillons, et en enduit gris clair en faveur d’un effet d’intériorité, tandis que les façades sont traitées en blanc.
Le bandeau de fenêtres qui ceinture la surélévation est noir, tandis qu’un bandeau supérieur blanc, en cassettes d’aluminium, vient la coiffer et porter son enseigne.


Les sols en marmoleum et les murs ont des variations de couleurs propices à l’identification des espaces.
Un mobilier fixe en contreplaqué bouleau, conçu avec les usagers, et articulé aux espaces architecturaux pour participer à leur identité, occupe une partie des locaux.





