
Dans cet élégant bâtiment d’ateliers datant des années 1920, le projet consistait, pour le regroupement des deux antennes de la Direction Faune Action Salubrité de la ville de Paris, à recréer des locaux capables d’absorber un doublement des effectifs.




Sont ainsi développés, suivant un volet technique exigent, de nouveaux locaux selon une zone « propre » et une zone « sale » : bureau, magasin, vestiaires, et local de rinçage des outils (équipé d’une grande cuve enterrée pour vidanges séparées), de stockage d’outils, de stockage de biocides (équipés de rétention spécifique).
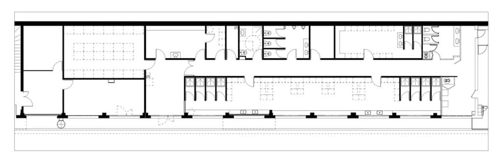
Le vestiaire principal se développe le long de la façade sur cour. Conçu pour accueillir 42 personnes, il tire parti d’un éclairement naturel abondant et accentue sa longueur par des rythmes dans le calepinage des carrelages et du plafond blancs, ou dans l’implantation à venir des casiers. Un grand miroir, dans leur prolongement, imite les vastes fenêtres longées d’une banquette menuisées laissant place à des lavabos. Aux deux extrémités du vestiaire, une série de douches allonge encore la perspective.


Le bureau profite aussi de ces larges fenêtres. Les sols des locaux techniques et de stockage est peint en jaune vif, tandis que le couloir principal a fait l’objet, par un traitement de couleurs et par le rythme de luminaires, d’un travail sur la perception de la profondeur.



