
La restructuration de la médiathèque Melville combine un éventail d’approches s’appuyant sur les qualités du bâtiment existant.
Au titre de la mise en accessibilité du bâtiment, elle intègre des interventions sur les blocs sanitaires et sur le mobilier. Au titre du confort lumineux et acoustique, et d’une maintenance plus aisée en plafond, elle entraîne un projet global pour la dépose et la réfection des plafonds sur tous les niveaux du bâtiment.

S’adaptant à une nouvelle distribution du personnel, à la mise en conformité électrique, et pour améliorer leur confort acoustique, cette restructuration inclut la réfection générale des bureaux, incluant leur mobilier.
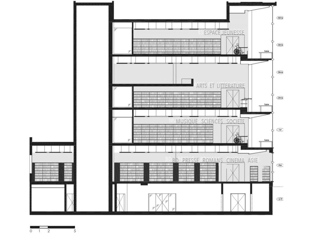
Au titre d’un rajeunissement et d’une amélioration fonctionnelle, le projet prévoit un nouvel agencement de chaque niveau, à l’aide du mobilier existant, mais avec de nouveaux meubles également, notamment destinés à une nouvelle qualité d’accueil et à l’étage dédié à la jeunesse, dont la fréquentation est nombreuse et croissante.


Notre projet, dès l’origine, consistait à déposer les résilles en aluminium occupant les plafonds de tous les plateaux de lecture.
Pour intégrer un confort lumineux, un nouveau traitement acoustique, et une nouvelle perception des espaces, les plafonds des plateaux de lecture ont été le sujet central apparaissant au programme et le fruit d’interactions au sein de notre équipe et d’une série d’essais, notamment en maquette et en 3D. Les sujets levés portaient sur la géométrie, l’orientation, voire l’échelle, afin d’obtenir une disposition favorable à l’acoustique par la multiplication des « effets de bords » qui participent de façon notoire à la diminution du temps de réverbération.
Le motif retenu adopte une double orientation parallèle aux rues Nationale et de Tolbiac, comme les résilles existantes. L’ensemble suspendu adopte sa grille géométrique propre proposant une véritable maille au plafond prenant le relais de l’ancienne. Celle-ci intègre les luminaires et reste composée de plans alternant avec des vides. Est ainsi constituée une nappe flottante acquérant un caractère immatériel, se fondant dans un fond blanc cassé participant à l’ensemble, et formant un tout monochrome en relief.







