
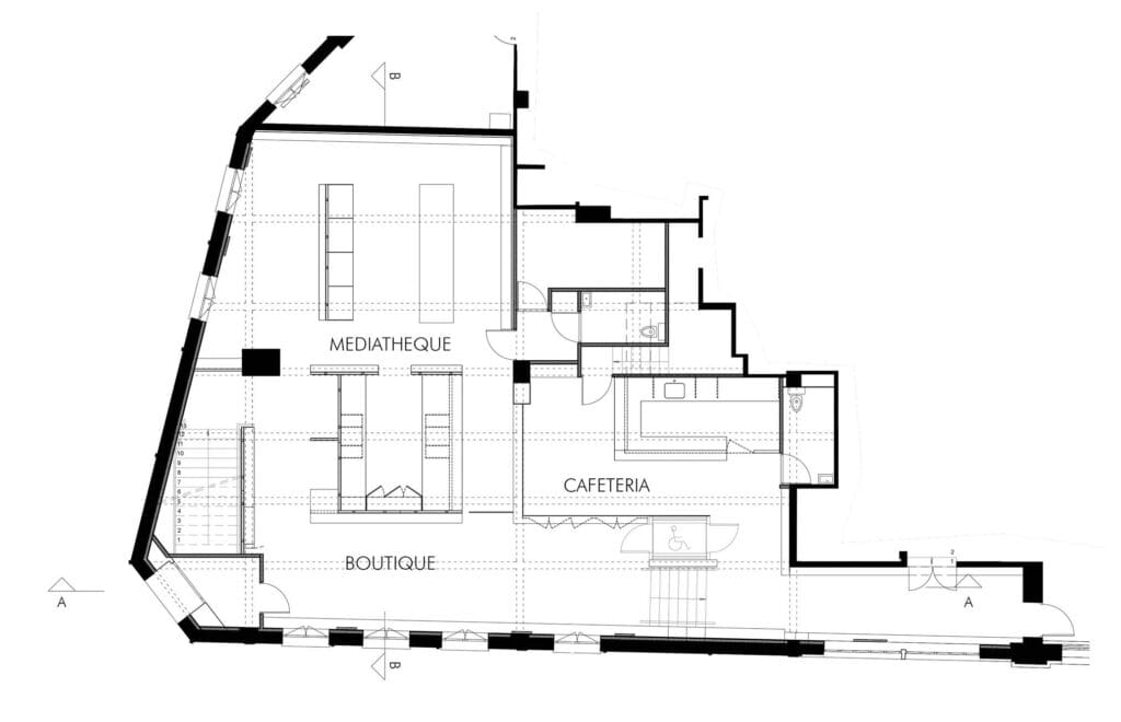
Après avoir dépouillé le volume de ses faux plafonds et cloisonnements pour y trouver un espace unitaire, le projet s’attache à articuler les parties du programme entre elles, tout en respectant leurs différences d’usage.
Il s’agissait d’implanter une médiathèque à l’entresol de l’immeuble Massillon, bâtiment du fin XIXème situé au cœur de l’île de la Cité. Une intervention pour la fondation Louis Lépine, qui vient en aide au personnel de la préfecture de police.

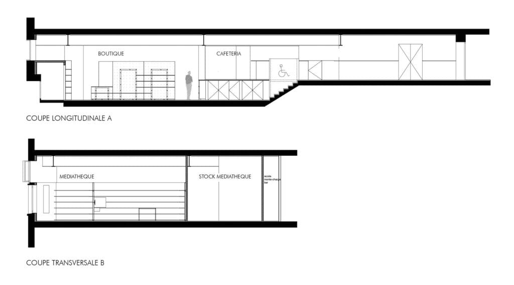
Le café surélevé permet de voir le grand espace depuis un vitrage acoustique, qui garantit le calme de la médiathèque. En contrebas viennent se développer l’espace vente et la médiathèque autour d’un grand meuble central, qui fait également office de coupure acoustique.



Le mobilier translucide conçu spécifiquement permet à la fois séparation et porosité, en ménageant des vues et des profondeurs de champ. Pour souligner l’homogénéité de cet espace blanc, perçue en particulier depuis le promontoire d’entrée, les meubles et cloisons modulaires s’alignent sur les appuis de fenêtres hautes, libérant un long bandeau vitré qui suit l’angle de la pièce.
Le personnel de la préfecture de police viendra à la médiathèque pour se couper des contingences du quotidien : ainsi le rétroéclairage du mobilier par bandeaux de LED crée une atmosphère immatérielle, un ailleurs où le temps semble suspendu et où la lumière prend des matières singulières. Entre plafond brut révélant la structure historique du bâtiment, les réseaux apparents et le mobilier posé au sol, une hybridité particulière fabrique l’identité de cet ailleurs.




