
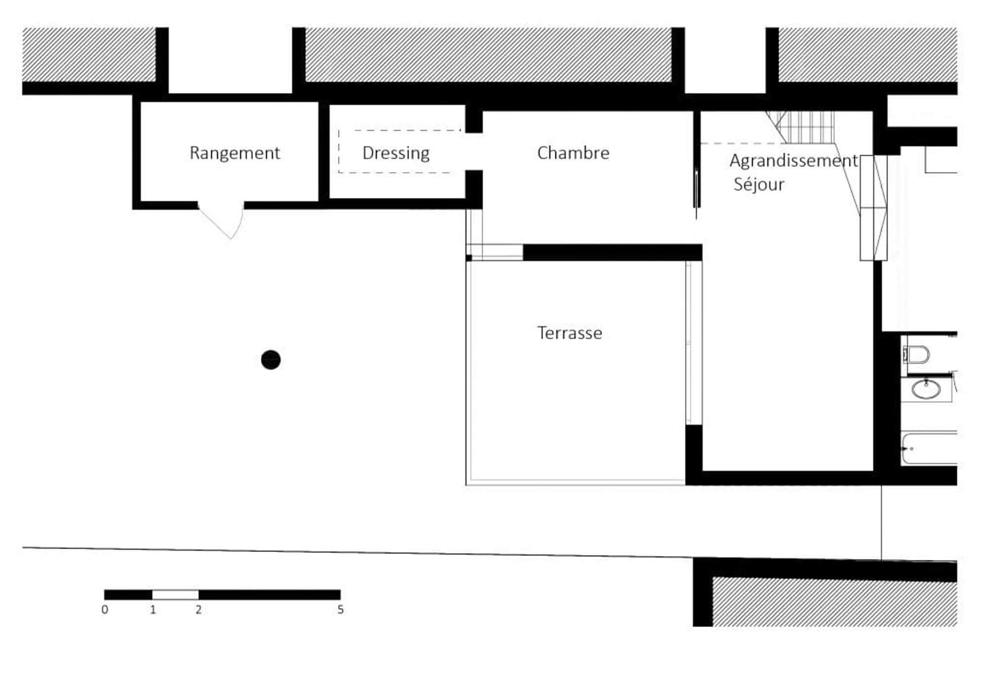
Attenant à une meulière dans un quartier pavillonnaire, cette extension assemble des volumes de sorte à ouvrir de vues et apporter de la lumière de l’ouest aux parties existantes de la maison, la prolonger d’un séjour plus vaste s’approchant du jardin, la doter d’une chambre supplémentaire en intimité avec le jardin, surmontée d’une mezzanine ouverte sur le séjour, et en fin d’un local de rangement accessible par l’extérieur.



L’extension s’ organise autour d’une terrasse conçue de sorte à recevoir la lumière du sud et de l’ouest. Elle articule des volumes élégants en hauteur et en longueur ouverts en angle, assemblés par un traitement unitaire greffé sur la meulière et en dialogue avec les maisons voisines.
La construction est en briques maxi-thermiques à section carrée : ces dernières sont structurelles, isolantes, et assurent en même temps le traitement de façade.


