
L’Odyssée est une construction en bois développée de plain pied au sein du parc de la Galathée. Nous avons conçu un lieu de rencontre au sein de quartiers sensibles, un lieu de vie qui rassemble les générations, où les aînés transmettent aux plus jeunes.
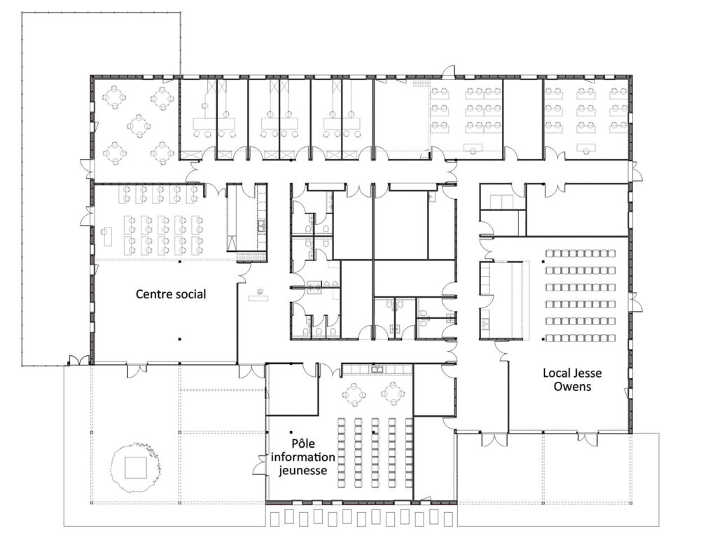
Au delà de la réponse fonctionnelle aux trois équipements le constituant, nous avons conçu un bâtiment unitaire, porteur de convivialité par la clarté et le soin apporté à ses espaces communs, et capable de fonctionner à la fois en entités séparées, et en un seul équipement lisible et cohérent.





Notre projet ouvre ainsi une « placette » à l’angle sud du bâtiment, entrelacée avec le parc, pour inviter le visiteur, à s’acheminer vers l’équipement social et accéder à l’accueil commun. Cette placette ouvre les salles polyvalentes du centre social et du pôle d’information jeunesse vers le sud au travers de parois en profilit translucide. Un jardin potager est positionné dès les abords de l’équipement sur son côté sud-ouest. Des jardins protégés jouxtent les salles d’activité du centre social.
Les circulations des trois équipements forment un seul anneau distributif entourant le noyau technique du bâtiment, matérialisée par un traitement an bois aggloméré (MPF). Elles bénéficient d’une lumière zénithale, forment des lieux de convivialité rompant avec l’image de couloirs, et portent ainsi l’identité forte de l’Odyssée. Il est facile d’unifier cet anneau en ouvrant les portes séparatives : soit pour passer d’un équipement à l’autre, soit, à certaines occasion spéciales, pour utiliser la globalité du bâtiment et des ses salles polyvalentes.


Les utilisateurs du local Jesse Owens auront leur placette indépendante, qui creuse à son tour le bâtiment au sud-est, en regard sur les terrains de sport. Les placettes sont reliées par un réseau de circulation intérieur.
