Skip to main content
Locaux de l’ARCP

Ateliers de restauration et laboratoires destinés au traitement de photographies anciennes pour les musées parisiens.

Localisation
Paris XVIII
Budget
1,4 M€ HT
Statut
Livré en mars 2024
Surface utile
644 m²
Maîtrise d’ouvrage
Ville de Paris
Maîtrise d'oeuvre

Gaspard Saint-Macary Architecte
B27 BET tous corps d’états
EPBV Économiste de la construction

Photographies
Cyrille Lallement

Le patrimoine photographique municipal, dont l’origine remonte à l’époque de l’invention de la photographie, est riche de plus de 13 millions de photographies : daguerréotypes, tirages sur papier et négatifs conservés dans les musées, les bibliothèques et les archives de la Ville de Paris. Ces fonds exceptionnels représentent une très grande valeur historique, culturelle et artistique.

La préservation de ces fonds est notamment assurée par l’Atelier de Restauration et de Conservation des photographies (ARCP), établissement créé en 1983 au sein de la direction des Affaires culturelles de la Ville de Paris, qui édicte des préconisations de conservation et restaure les fonds les plus précieux et fragiles, en liaison avec les responsables de chacune des collections.

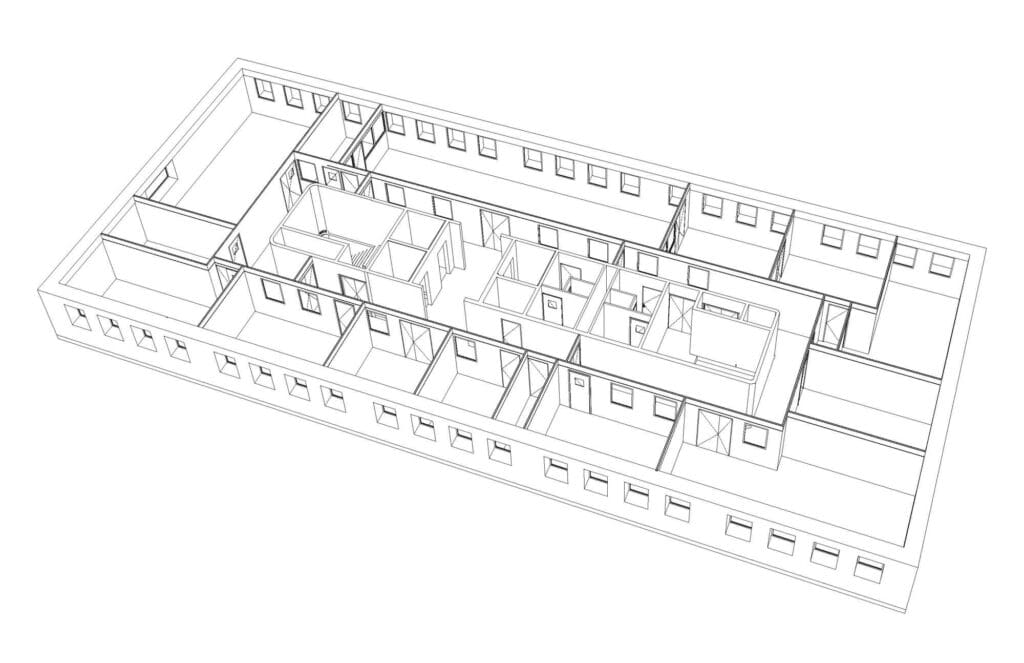
Le déplacement de cette antenne au sein d’un immeuble municipal de la porte de la Chapelle demandait la conception de locaux spécialisés, répondant à de nombreuses contraintes de fonctionnement et à des caractéristiques techniques propres à chaque espace. Le contrôle de l’hygrométrie dans tous les locaux où circulent des œuvres a fait l’objet de la création, en toiture de l’immeuble, d’une centrale de traitement de l’air dédiée directement ramifiée pièce par pièce. L’occupation totale, l’isolation, et la climatisation de locaux d’archivage étaient également nécessaire. L’atelier de restauration se développe en une chaîne associant zone sèche, zone humide et zone chimique.

Au delà de ces caractéristiques techniques, le projet s’est efforcé de penser ce plateau comme un lieu de vie appropriable, favorisant la convivialité et profitant des vues sur le parc de la Chapelle Charbon au sud, sur la périphérie parisienne au nord, au travers de transparences apportant lumière et relations visuelles dans les circulations, lieux de vie par excellence.

En savoir plus
sur le projet