
L’intérieur a fait l’objet d’un curage global pour trouver des espaces nus qu’il s’agissait de révéler par un traitement sobre où l’on a conservé, juxtaposées au parois lisses destinées à l’accrochage, certaines faces ou tranches en pierre brute propres à révéler l’ancienneté de l’immeuble.



En harmonie avec la façade de l’immeuble, la devanture, reconstruite à l’extérieur des murs, amplifie la transparence entre extérieur en faisant filer le vitrage devant des parties de mur dont on a retrouvé la pierre brute. Cette devanture sombre et mate opère une unification des espaces de la galerie vus depuis les rues de Turenne et Saint Anastase, et met en valeur le commerce avec élégance.
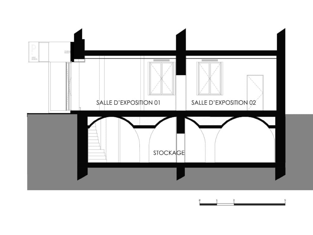
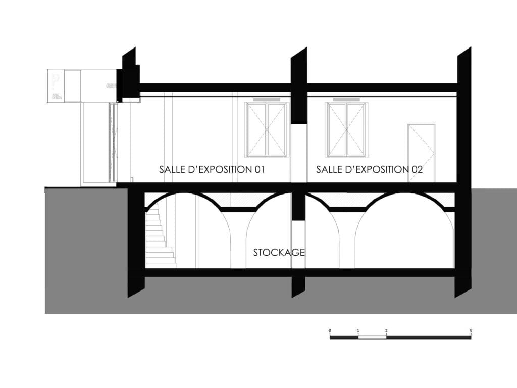
Le traitement global en parquet intègre une grande trappe maniée par un treuil qui donne l’accès aux espaces de stockage du sous sol.





