
Le showroom en sous sol
Dans cet espace d’une centaine de mètres carré, la démolition d’une dalle a permis de libérer un espace en hauteur défini par une large voûte en maçonnerie que l’on repeint en blanc. L’éclairage est constitué de lignes fluorescentes.

Sur un côté, un atelier jouxte cet espace. Sur l’autre, il est bordé par une autre pièce en longueur servant également de showroom pour des œuvres montrées là à des collectionneurs, indépendamment des expo- sitions ayant cours dans les salles du rez de chaussée. Des voutains en terre cuite forment le plafond ; les tubes fluorescents suivent le même rythme.


La façade
Les quarante mètres de façade de la galerie, à l’angle de la rue du cloître Saint Merri et de la rue des Juges Consuls, avaient pour rôle, dans ce projet, de redonner une unité lisible au lieu. La galerie est en effet composée d’une série de sous espaces donnant de part et d’autre d’un hall d’immeuble rue des Juges Consuls, et, à nouveau, de part et d’autre d’un hall d’immeuble rue du Cloître Saint-Merri.
La façade en panneaux de bois peint (Medex) englobe cette hétérogénéité par sa teinte anthracite et rétablit son unité grâce à un bandeau longeant la corniche. Des panneaux de verre peint occultent certaines baies : la galerie à moins besoin de lumière naturelle que de surface d’accrochage. Un soubassement en inox la ceinture par le bas. Des rubans à LED entourent certaines ouvertures.



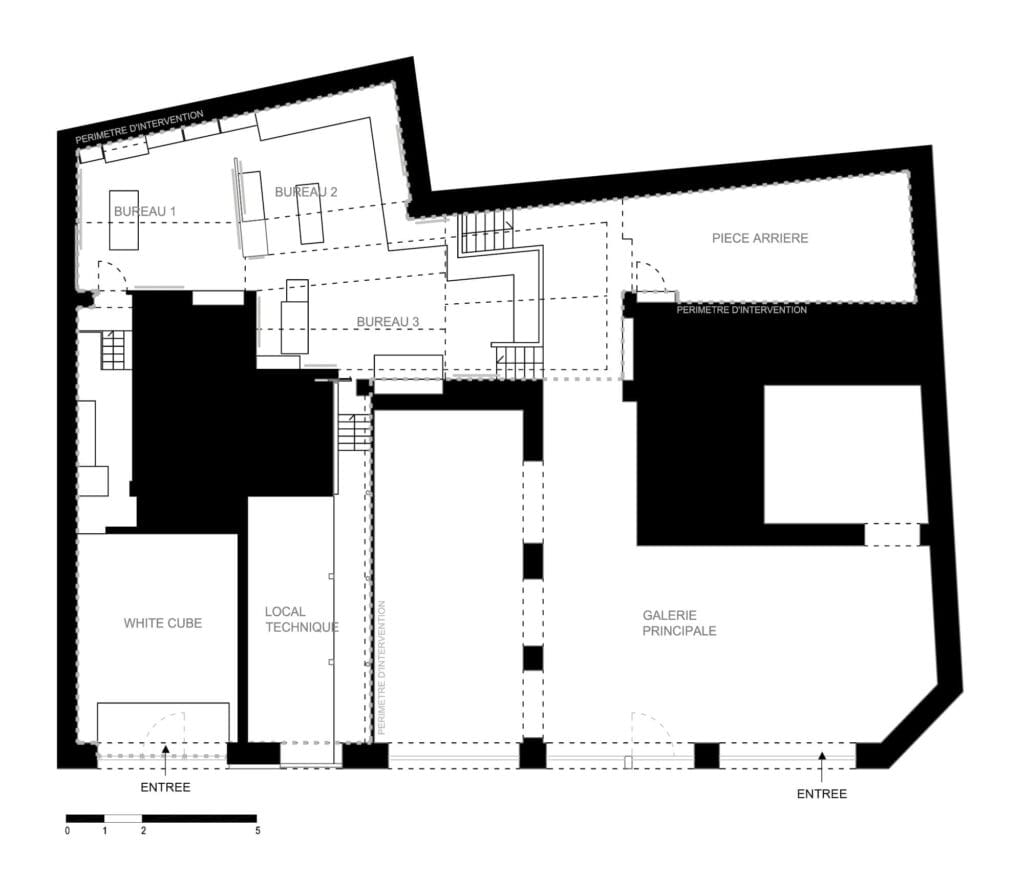
Les bureaux se déploient dans l’espace comme un ruban longeant les murs accidentés, tandis que d’autres parties, autonomes, fabriquent des coins plus individuels.
En contreplaqué aux bords sont biseautés, et re- couverts d’un stratifié blanc, l’ensemble forme une nappe suspendue sur des pieds en inox qui réfléchissent la moquette beige. Des étagères murales blanches accompagnent le ruban.






