
Pour relier deux appartements superposés, la problématique principale concernait l’organisation des circulations, verticales et horizontales, de sorte à économiser un maximum de couloir au bénéfice des chambres, à favoriser le meilleur éclairement naturel des pièces de vie exposées au sud, et à permettre un usage simple et fluide de tous les espaces.



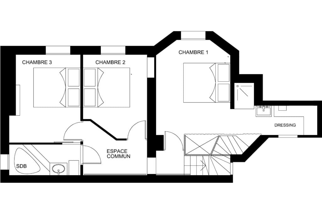
La création de l’entrée à l’étage supérieur permet un espace ouvert bénéficiant de la meilleure lumière. L’escalier s’offre une trajectoire en S mise en valeur par un jeu de couleurs et de mise en lumière. L’escalier débouche, en bas, dans une distribution horizontale sans jour naturel, mais néanmoins dégagée, donnant l’accès aux trois chambres et à une salle de bains.
La chambre parentale annexe l’ancienne entrée de l’appartement du 3ème pour la réalisation d’un dressing, fermé par une paroi miroir, d’une douche maçonnée et d’un lavabo. Une paroi menuisée offre des placards supplémentaires et plonge dans la paroi miroir.




