
Notre proposition prend appui sur l’existant pour repenser globalement l’auditorium. Elle se fonde sur des améliorations fonctionnelles, sur une nouvelle lecture du volume disponible, et sur la recherche d’une image distinguée, contemporaine, et singulière. Une galerie est creusée le long du volume préexistant pour permettre un accès supplémentaire ainsi que la création de vestiaire et régie côté scène.

En s’appuyant sur le potentiel des volumes existants, il s’agissait de trouver des proportions élégantes au profit d’une image de prestance unique pour l’auditorium de Gerson.

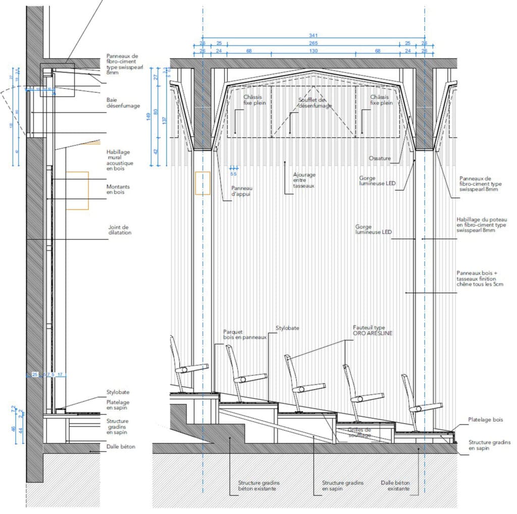
Les colonnes existantes côté Ouest, marquant la verticalité, sont reproduites sur le côté Est. Elles sont prolongées par un développement de facettes au plafond, formant une série d’arches favorisant une sensation de hauteur. L’ensemble a un revêtement à l’aspect minéral (Swisspearl).


Les parois latérales reçoivent un revêtement en bois en lignes verticales, dont la découpe en facettes assure le traitement acoustique favorisant notamment l’intelligibilité de la parole et la musique acoustique comme amplifiée. L’auditorium est ainsi conçu pour un large panel d’usage : théâtre, conférences, concerts acoustiques, concerts amplifiés, projections.
En partie haute de ces arches, les habillages de bois sont ajourés pour permettre un traitement acoustique absorbant mais également le désenfumage naturel de la salle par des exutoires dissimulés.


Pour ces usages, l’équipement scénotechnique est lui aussi repensé au titre de la performance et de la simplicité d’usage, de sorte qu’aucun technicien particulier ne soit requis pour le son, pour l’éclairage et pour la projection vidéo et qu’une utilisation autonome et intuitive soit aisée.






