
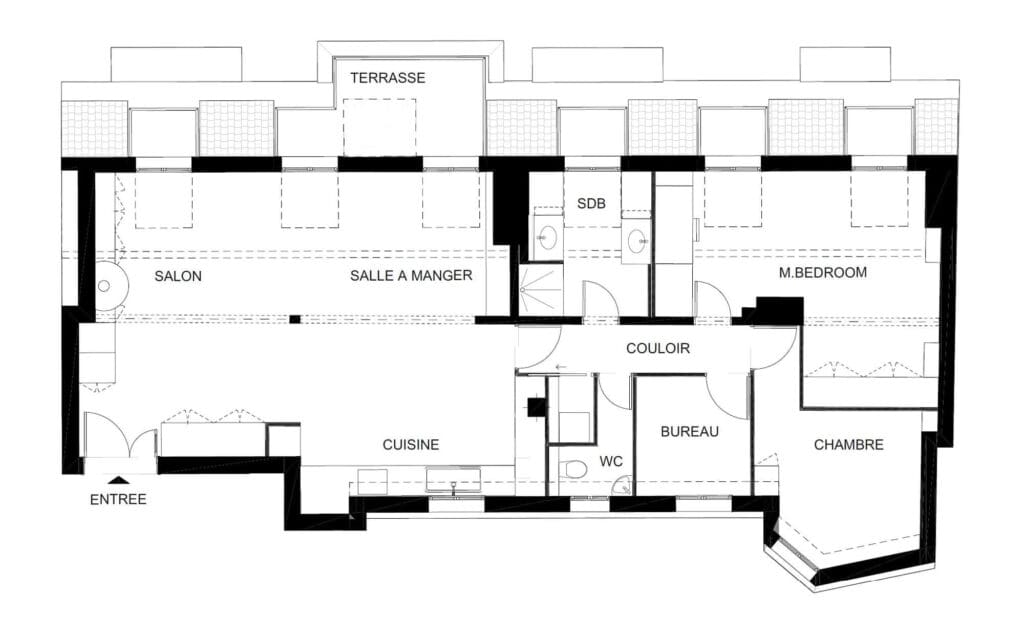
Traversant est ouest sur toute sa longueur, il profite d’une vue exceptionnelle sur les toits de Paris, en direction de la Seine.


Pour profiter de cette vue, il fallait développer une terrasse suffisamment profonde pour y installer une table et des chaises. Cela a été rendu possible à l’issue de démarches auprès de l’architecte des bâtiments de France, des services d’urbanisme, mais aussi de la copropriété, à qui il a fallu préalablement racheter une portion de toiture.
Pour dégager le volume du séjour, des reprises de structures ont permis d’éliminer l’un des poteaux ainsi qu’un voile porteur.


Développé pour un couple recevant ponctuellement enfants ou amis, l’appartement comporte une grande chambre principale ainsi qu’une chambre secondaire et un bureau fermé.
La salle de bain est conçue comme un dispositif orienté cadrant le paysage des toits parisiens.
L’ensemble menuisé est plaqué d’une matière stratifiés vert bleuté, prolongeant la teinte des grandes dalles de carrelage. Les vasques se font face et les miroirs toute hauteur, bordés de rubans lumineux, produisent une réflexion à l’infini.



