
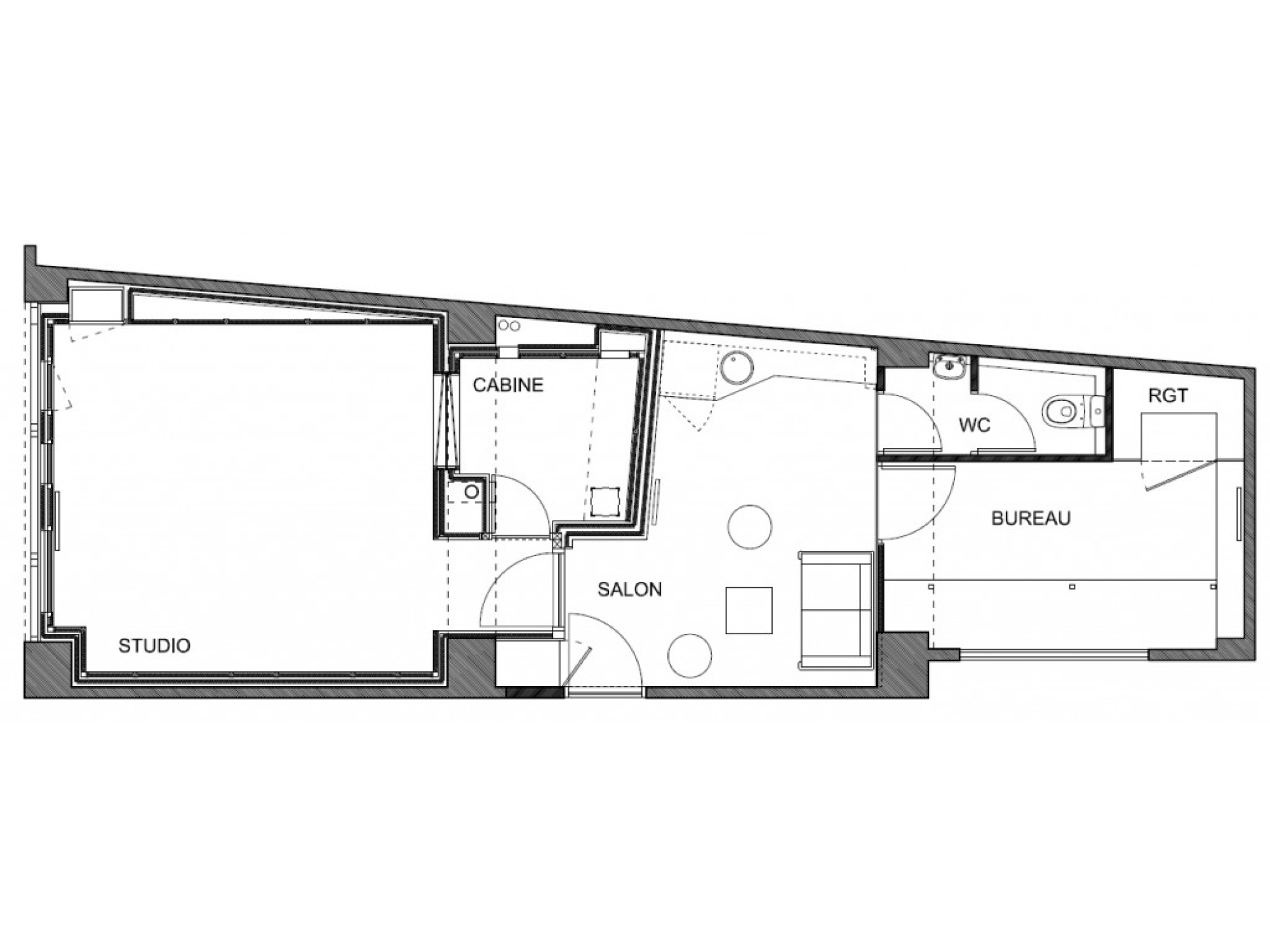
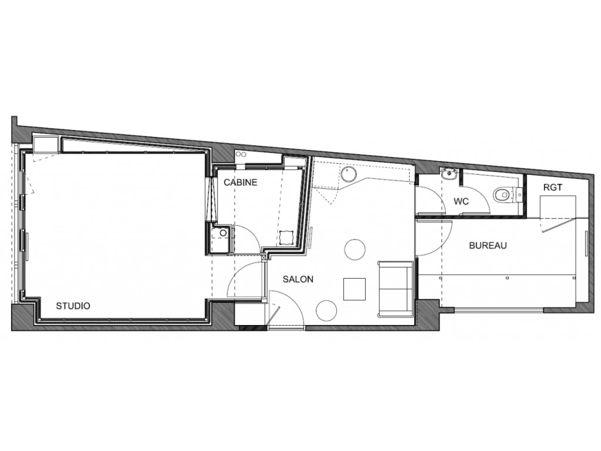
Il s’agit d’un studio d’enregistrement pour le label Entreprise (www.lesdisquesentreprise.fr), dédié à des groupes de musique mais également à des équipes de publicité. Construit dans un ancien local commercial communiquant par une cour avec les bureaux, le lieu de vie, et l’autre studio du label , ce studio est accompagné d’un salon et d’un bureau qui en font une petite base de vie où les groupes passeront de longues heures.


La cabine de prise de son a une structure entièrement autonome : elle est entourée et couverte d’une lame d’air et posée sur un complexe anti vibratile. Elle communique avec le studio par une fenêtre assemblant deux glaces épaisses posées à l’oblique.
Le studio, ou « mix », accueille l’ingénieur du son et les membres du groupe n’enregistrant pas. Cette pièces est également isolée de la structure du bâtiment par une lame d’air périphérique. L’intérieur du studio et de la cabine ont un traitement acoustique absorbant ; toute amenée ou extraction d’air parcourt un piège à son.


Le studio bénéficie de lumière naturelle par le biais de vitrages dépolis. Le salon, le bureau et le bloc sanitaire s’assemblent au studio pour former une confortable caravane propice à l’isolement et la concentration.
